2757 KINGSWOOD CIRCLEBROOKSVILLE, FL 34604
Due to the health concerns created by Coronavirus we are offering personal 1-1 online video walkthough tours where possible.




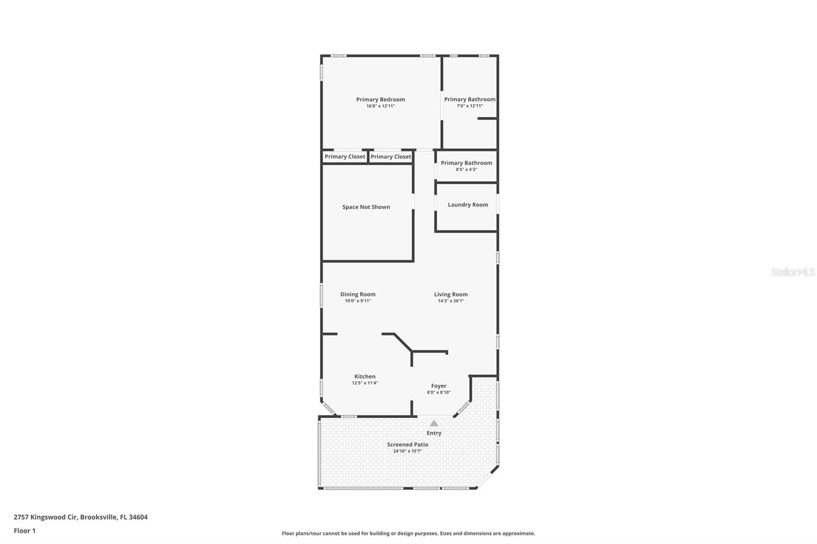
Welcome to this well-maintained 2-bedroom, 2-bath manufactured home, ideally located in a tucked-away 55+ community where residents truly love where they live—and rarely leave. Set in a quiet, established neighborhood, this home offers a comfortable and functional layout designed for easy living. The split bedroom plan provides privacy for both owners and guests, while the open living areas create a warm, inviting space to relax or entertain. What truly sets this home apart is the community itself—a close-knit, peaceful environment known for long-term residents, pride of ownership, and a welcoming atmosphere. Neighbors become friends, and many choose to stay for years, a true testament to the lifestyle this community offers. Whether you’re looking to downsize, simplify, or enjoy a more relaxed pace of life, this home presents an excellent opportunity to become part of a sought-after 55+ neighborhood that people are proud to call home. Schedule your private showing and see why so many residents choose to stay.
| 3 hours ago | Listing updated with changes from the MLS® | |
| 3 hours ago | Listing first seen on site |
Listing information is provided by Participants of the Stellar MLS. IDX information is provided exclusively for personal, non-commercial use, and may not be used for any purpose other than to identify prospective properties consumers may be interested in purchasing. Information is deemed reliable but not guaranteed. Properties displayed may be listed or sold by various participants in the MLS Copyright 2026, Stellar MLS.
Last checked: 2026-01-28 07:27 PM EST

Did you know? You can invite friends and family to your search. They can join your search, rate and discuss listings with you.